информация о продукте
Гидравлический люнет HY420B использует гидравлическую систему токарного станка с ЧПУ.
Эта система, в отличие от гидравлических прессов, шлифовальных машин и строительной техники, в основном выполняет вспомогательные движения, необходимые для обработки деталей.
Усилие и расход, необходимые для этих вспомогательных движений, изменяются минимально.
Его основные нагрузки — это обеспечение зажима и затяжки обрабатываемых деталей, фиксация режущей головки, перемещение цилиндра и балансировка ползуна при больших углах наклона.

На самом деле, большинство гидравлических люнетов токарных станков с ЧПУ имеют фрикционные или роликовые опоры, требующие ручной регулировки.
Три опорных захвата люнета необходимо вручную отрегулировать для совмещения с окружностью.
Этот подход также имеет свои недостатки, такие как сложность в использовании и вероятность возникновения погрешностей.
На практике этот метод центрирования не совсем надежен и часто зависит от опыта и ощущений оператора.
По мере того, как гидравлические люнеты всё чаще используются на токарных станках с ЧПУ, растёт и число производителей этой продукции.
Как компания с многолетним опытом работы, наша компания обладает уникальными навыками в производстве и разработке продукции.
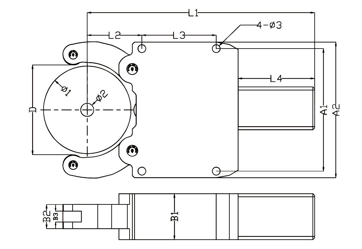
Размер товара

Параметры продукта
| HY-B(C) series center stand specifications, dimensions and technical performance parameters | |||||||||
| Model | HY115B | HY170B | HY220B | HY260B | HY310B | HY350B | HY420B | HY520C | HY650C |
| Clamping diameter range | φ15-φ115 | φ20-φ170 | φ40-φ220 | φ35-φ260 | φ50-φ310 | φ75-φ350 | φ115-φ420 | φ150-φ520 | φ250-φ650 |
| L1(mm) | 279 | 394 | 479 | 517 | 550 | 600 | 648 | 658 | 798 |
| L2(mm) | 83 | 116 | 136 | 157 | 177 | 229 | 258 | 278 | 403 |
| L3(mm) | 92 | 160 | 202 | 230 | 270 | 240 | 270 | 315 | 300 |
| L4(mm) | 55 | 60 | 60 | 60 | 30 | 30 | 30 | 30 | 35 |
| A1(mm) | 190 | 258 | 341 | 360 | 400 | 461 | 440/475 | 560/680 | 750/625 |
| A2(mm) | 215 | 285 | 372 | 392 | 442 | 499 | 510 | 750 | 812 |
| B1(mm) | 85 | 95 | 110 | 110 | 125 | 125 | 136 | 155 | 175 |
| B2(mm) | 45 | 55 | 60 | 60 | 75 | 75 | 72 | 95 | 95 |
| B3(mm) | 15 | 25 | 25 | 25 | 29 | 29 | 29 | 32 | 32 |
| φ1(mm) | 115 | 170 | 220 | 260 | 310 | 350 | 420 | 520 | 650 |
| φ2(mm) | 15 | 20 | 40 | 35 | 50 | 70 | 115 | 150 | 250 |
| φ3(mm) | 14 | 18 | 18 | 22 | 22 | 22 | 22 | 22 | 26 |
| D(mm) | 118 | 176 | 226 | 268 | 311 | 355 | 420 | 520 | 655 |
| Working Pressure (MPa) | 0.5-10 | 0.5-10 | 0.5-10 | 0.5-10 | 0.5-10 | 0.5-10 | 0.5-10 | 0.5-10 | 0.5-10 |
| Working Range Centering Accuracy | 0.03 | 0.04 | 0.05 | 0.05 | 0.06 | 0.06 | 0.07 | 0.08 | 0.09 |
| Repeat | 0.01 | 0.01 | 0.01 | 0.01 | 0.01 | 0.01 | 0.01 | 0.02 | 0.02 |
| Net Weight (kg) | 23 | 48 | 88 | 94 | 138 | 168 | 198 | 318 | 438 |






















